


Local Authority
BarnetServices
Applications, Appeals

Project Overview
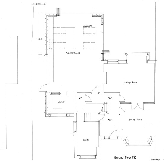
Bell Cornwell, on behalf of a private client, has successfully secured planning permission through the appeal process for a single-storey side and rear extension, resulting in a useable and practical living space for a family home.
The client had previously gained planning permission for an alternative, but impractical design which stepped the side walls of both the side and rear extensions. The client wished to have a practical living space without the stepped elevations.

Site Location & Application
Therefore, a second application, removing the stepped elements of the scheme, was submitted. It was refused by the Council by reason of its size, width and location. The Council considered the scheme to be out of character with the host building and that the rear projection created a sense of enclosure and loss of privacy for the adjacent neighbour.
Bell Cornwell assisted the client by preparing and submitting a robust appeal statement to illustrate why the extensions were acceptable and demonstrate that the Council’s concerns were unjustified. The Council’s decision was overturned by the Planning Inspector and the appeal allowed.




