


Local Authority
Mid DevonServices
Applications

Project Overview
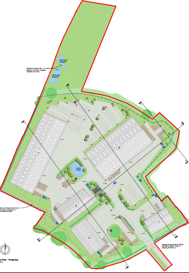
Acting on behalf of Ecoblend Technologies Pension Plan, Bell Cornwell has successfully secured reserved matters approval for a new employment development with a mix of office, industrial and warehouse uses on land located between Junctions 27 and 28 of the M5 at Mid Devon Business Park.
This approval will see the construction of five new buildings and will provide 138,000 sqft of new employment space in an area which has high demand for such premises given its excellent location to the nearby major highways network.

Bell Cornwell were referred to the client by a local engineering consultancy firm because of our town planning expertise and as a result of a successful relationship established from working together on other projects in the South West.
When we were introduced to the project, our client was just weeks away from the extant outline permission lapsing. Bell Cornwell were able to quickly mobilise a full project team including architect and technical consultants, agree the scope of the reserved matters application (to ensure a valid application) and then drive the team forward in order to submit a comprehensive and well-considered scheme to ensure that the outline permission did not lapse. Bell Cornwell have since taken the application through the planning process to a successful resolution.




