Outline Planning Permission Secured for 34 Lodge Holiday Village in North Devon

Local Authority

Torridge

Services

Applications, Community Consultation
Sectors
  • Agriculture and Rural
  • Leisure and Tourism
Decoration Decoration

Clear demonstration of economical and community benefits help to secure planning permission for holiday village

Client Peninsula Properties
Architect Redbay Design
Author Iestyn John
Partner

Project Overview

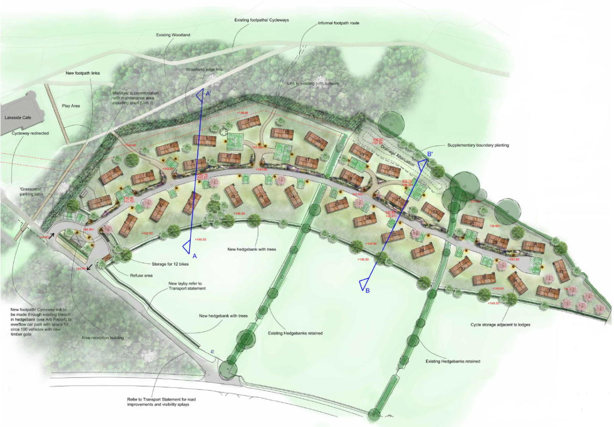
Acting on behalf of Peninsula Properties, Bell Cornwell has successfully secured outline planning permission for a holiday village comprising 34 lodges on land at the Lakeside Centre, Roadford Lake, Broadwoodwiger, Devon.

Bell Cornwell were able to overcome the ‘in principle’ issue of development within the ‘open countryside’ by setting out clear economic and community benefits to the proposals and by demonstrating that the scheme represented high-quality sustainable tourism and leisure development.

The greenfield and rural nature of the site meant that it was necessary to consider and robustly address a range of technical issues, which Bell Cornwell was able to do supported by a number of technical consultants.

Bell Cornwell also supported Peninsula Properties with their community engagement including attending and presenting at several meetings held with the surrounding parish councils.

We were able to negotiate the application to a resolution without the requirement for any costly Section 106 planning obligations and without the inclusion of any restrictive planning conditions relating to future occupation and/or sale of the lodges.

More Projects

All ProjectsDecoration